Referentie: 202454
VERKOCHT
Breisemstraat 9, 3300 Tienen Bekijk op de kaart
€ 0
Begindatum: 28/09/2021 10:00
Einddatum: 06/10/2021 10:00
Bodverhoging: € 0
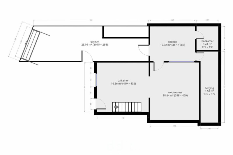
Te renoveren woning.
Gelijkvloers: salon met eetkamer, keuken, badkamer, berging;
1e verdieping: 2 slaapkamers;
Zolder: geïsoleerd;
Garage met automatische poort;
Voortuin;
Contactgegevens
Kantoor Geassocieerde notarissen Honorez
Nieuwstraat 42 3300 Tienen
Tel.: 016/81.11.53
Dossierbeheerder: Jens Depre
E-mail: jens@honorez.eu
Rechtstreekse telefoon: 016/804.908
€ 0
Begindatum: 28/09/2021 10:00
Einddatum: 06/10/2021 10:00
Bodverhoging: € 0
| Oppervlakte kadaster | 123,00 m2 |
| Bewoonbare oppervlakte | m2 |
| Vrij vanaf | akte |
| Bouwjaar | 1900-1918 |
| Aantal gevels | 3 |
| Kadastraal inkomen | € 312 |
Kenmerken van het goed
| Oppervlakte grond | 123 m |
| Aantal badkamers | 1 |
| Living | Ja |
| Eetkamer | Ja |
| Ingerichte keuken | Ja |
| Zolder | Ja |
| Binnenparking(s) | 1 |
Energiegegevens
| Unieke code van het EPC-certificaat | 20210312-0002386543-RES-1 |
| Energiescore (EPC) | 638 kWh/m² |
Stedenbouwkundige gegevens
| De meest recente stedebouwkundige bestemming met de benamingen die gebruikt zijn in het plannenregister. | Woongebied |
| Type overstromingsgebied | Niet van toepassing |
| (procedure lopende inzake) herstelmaatregel ruimtelijke ordening | Neen |
| Stedenbouwkundige vergunning | Neen |
| Verkavelingsvergunning | Neen |
| Recht van voorkoop RUP | Neen |